COSY GARDEN 109 - 3 pièces Nantes 830,18 € cc

Rue de la Contrie 44100 Nantes

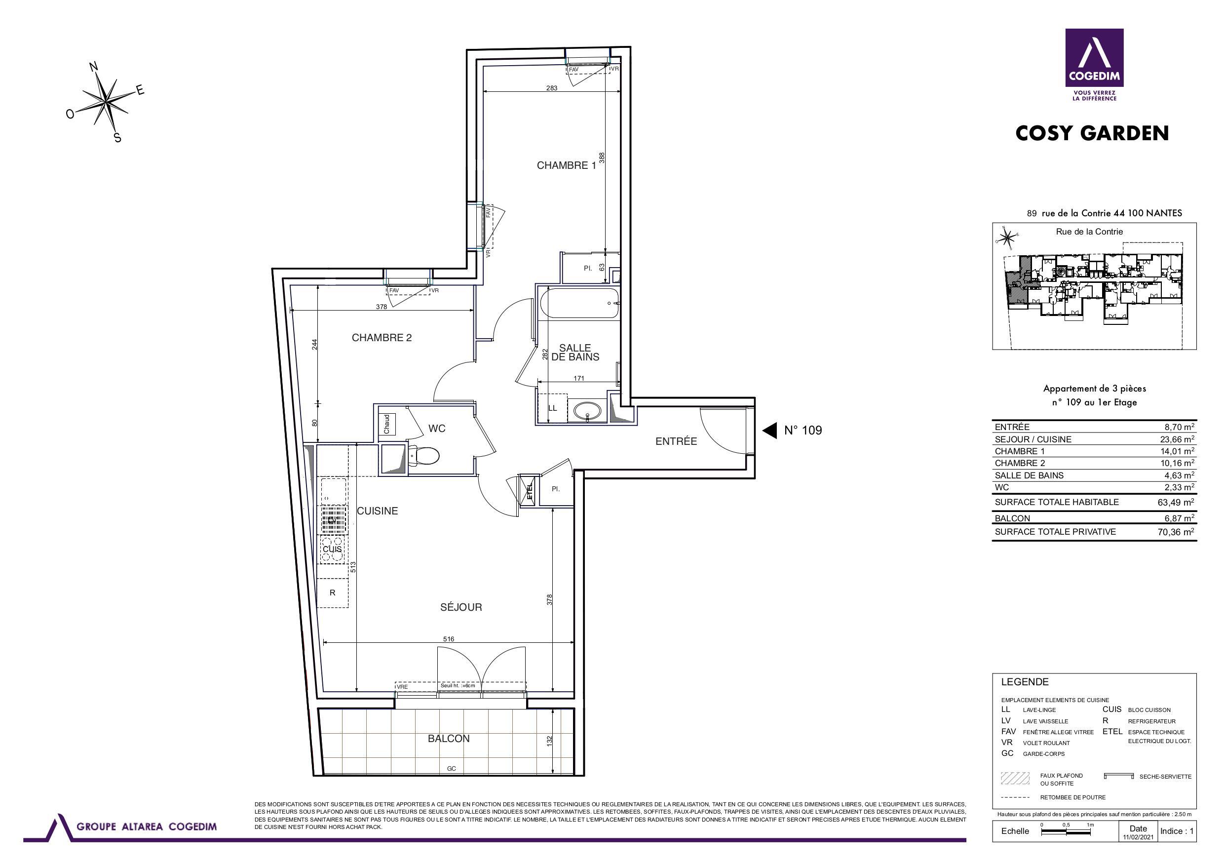
3 pièces 63.49m2

Référence : 9333

Conditions de location
830,18 € / mois cc

Charges
65,00 €

Dépôt de garantie
765,18 €

Honoraires agence
825,37 € TTC *


Disponibilité
Disponible le 01/11

Durée du bail
3 ans

Colocation
Acceptée


* Dont 190,47 € TTC pour la réalisation de l'état des lieux
Description

Résidence COSY GARDEN à Nantes

Agréable T3 de 63.49m² au premier étage d'une résidence récente avec ascenseur comprenant une entrée avec placard, une cuisine équipée ouverte sur la pièce de vie, 2 chambres dont une avec placard, 1 salle de bain et des WC séparés.
Le logement est loué avec une place parking en sous-sol.
Ainsi qu'un stationnement moto également en sous-sol.

Proches de toutes commodités et transports.

Chauffage, eau chaude chaudière individuelle gaz.

Loyer de 830.18€ CC (dont 65€ de provisions sur charges)
Dépôt de garantie de 765.18€
Honoraires de location de 825.37€ dont 190,47€ pour l'établissement de l'état des lieux

Candidature à déposer sur Flatbay

“Les informations sur les risques auxquels ce bien est exposé sont disponibles sur le site Géorisques : www.georisques.gouv.fr”.

Mis à jour le 21/10/2025

Caractéristiques
  • 2 chambres
  • Étage : 1
  • 1 salle d'eau
  • 1 baignoire
  • 1 WC
  • Bâtiment de : 3 étages
  • 2 parkings
  • Ascenseur
  • Balcon
  • Copropriété
  • Construit Après 1990

État général
Bon

Transports en commun
Équipements
Four
Inclus dans les charges
Entretien bâtiment
Eau froide
Relevés techniques

Orientation
Est

Traversant
Non

Vitrage
Double


DPE : 66
GES : 13

Diagnostic réalisé le: 13/07/23


Production eau chaude
Individuel Gaz

Production chauffage
Individuel Gaz


Les informations sur les risques auxquels ce bien est exposé sont disponibles sur le site Géorisques: www.georisques.gouv.fr

Biens similaires