1 012,04 € cc

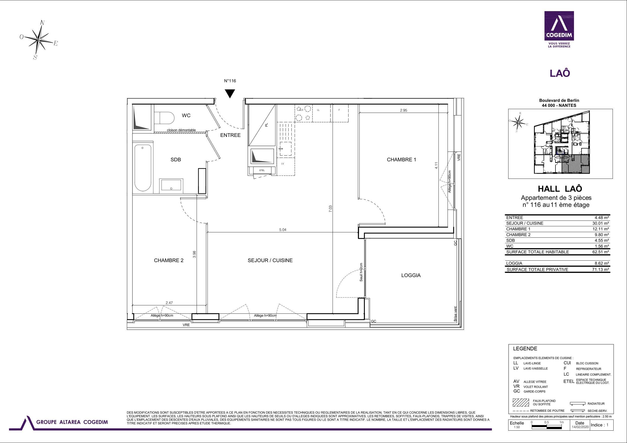
LAO 116 - 3 pièces Nantes

LAO 116 - 3 pièces Nantes

9 Boulevard de Berlin 44000 Nantes
3 pièces 62.51 m2
Référence : 8190
1 012,04 € cc
16,19 € m²

Conditions de location

1 012,04 € / mois cc

Charges
90,00 €
Dépôt de garantie
922,04 €
Honoraires agence
820,13 € TTC *
Disponibilité
Disponible le 31/01
Durée du bail
3 ans
Colocation
Acceptée

* Dont 189,40 € TTC pour la réalisation de l'état des lieux

Informations

2 chambres
Étage : 11
1 salle d'eau
1 baignoire
1 WC
Bâtiment de : 17 étages
1 parking
Ascenseur
Balcon
Local à vélo
Copropriété
Construit Après 1990

Description

Résidence LAO à Nantes

Agréable 3 pièces de 62.51m² au 11e étage d'une résidence neuve de 17 étages avec ascenseur comprenant une belle cuisine équipée ouverte sur la pièce de vie, 2 chambres, 1 salle de bain et des WC.

Le logement est loué avec un parking au sous sol.
Nombreux locaux vélos et local vélo cargo.

Proches de toutes commodités et transports.

Chauffage, eau chaude et eau froide comprises dans les provisions sur charges.

Loyer de 1 012.04€ CC (dont 90 € de provisions sur charges)
Dépôt de garantie de 922.04€
Honoraires de location de 820.13€ dont 189.40€ pour l'établissement de l'état des lieux

Candidature à déposer sur Flatbay

“Les informations sur les risques auxquels ce bien est exposé sont disponibles sur le site Géorisques : www.georisques.gouv.fr”.
Mis à jour le 06/01/2026

Transports en commun

Équipements

Plaques de cuisson
Four
Réfrigérateur
Lave-vaisselle
Fibre
Hotte Aspirante

Inclus dans les charges

Entretien bâtiment
Chauffage
Eau froide
Eau chaude

Relevés techniques

Orientation
Est
Traversant
Non
Vitrage
Double

DPE : 76
A
B
C
D
E
F
G
GES : 0
A
B
C
D
E
F
G
Diagnostic réalisé le: 16/03/2023

Production eau chaude
Collectif

Production chauffage
Collectif


Les informations sur les risques auxquels ce bien est exposé sont disponibles sur le site Géorisques : www.georisques.gouv.fr

État et prestations

État général
Bon