895,00 € cc

Appartement F2 meublé neuf / PLAISIR

Appartement F2 meublé neuf / PLAISIR

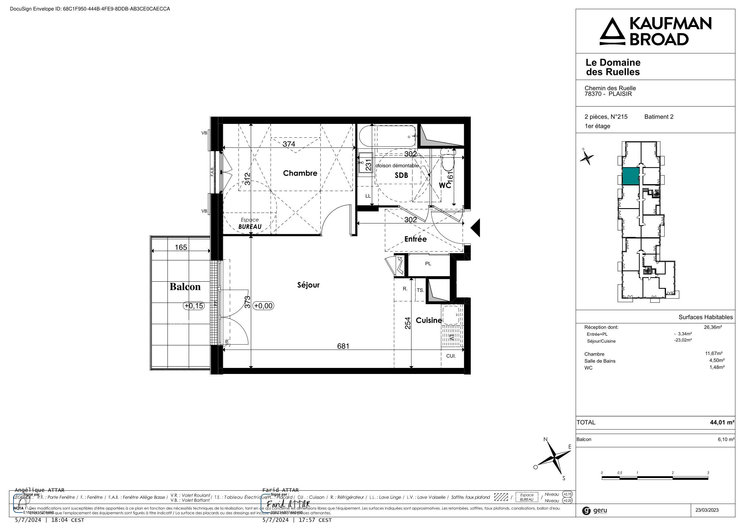
99 Chemin des Ruelles 78370 Plaisir
2 pièces 44.01 m2
Référence : 81363
895,00 € cc
20,34 € m²

Conditions de location

895,00 € / mois cc

Charges
130,00 €
Dépôt de garantie
1 529,97 €
Honoraires agence
572,04 € TTC *
Disponibilité
Disponible le 19/12
Durée du bail
1 an
Colocation
Non

* Dont 132,03 € TTC pour la réalisation de l'état des lieux

Informations

1 chambre
Étage : 1
1 salle d'eau
1 baignoire
1 WC
1 parking
Ascenseur
Balcon
Copropriété
Adapté PMR
Construit Neuf

Description

Dans une belle résidence neuve sur la commune de PLAISIR, Un appartement de type F2 meublé, situé au 1er étage comprenant: une entrée, une cuisine équipée ouverte sur séjour, une chambre aménagée, une salle de bains avec WC. Un balcon de 6,10m².

Mobilier entièrement neuf

Un emplacement de stationnement extérieur.
Mis à jour le 14/12/2025

Équipements

Plaques de cuisson
Four
Réfrigérateur
Lave-linge
Hotte Aspirante
Vaisselle
Linge de maison

Inclus dans les charges

Entretien bâtiment
Chauffage
Eau froide
Eau chaude

Relevés techniques

Traversant
Non
Vitrage
Double

DPE : 82
A
B
C
D
E
F
G
GES : 5
A
B
C
D
E
F
G
Diagnostic réalisé le: 24/11/2025

Montant estimé des dépenses annuelles d'énergie pour un usage standard : entre 295 € et 399 € par an.

Production eau chaude
Collectif

Production chauffage
Collectif


Les informations sur les risques auxquels ce bien est exposé sont disponibles sur le site Géorisques : www.georisques.gouv.fr

État et prestations

État général
Excellent