600,00 € cc

Louviers - Green Valley

Louviers - Green Valley

Rue Général Jacques Pâris de Bollardière 27400 Louviers
2 pièces 41.4 m2
Référence : 80030
600,00 € cc
14,49 € m²

Conditions de location

600,00 € / mois cc

Charges
55,00 €
Dépôt de garantie
545,00 €
Honoraires agence
455,40 € TTC *
Disponibilité
Dès maintenant
Durée du bail
3 ans
Colocation
Non

* Dont 124,20 € TTC pour la réalisation de l'état des lieux

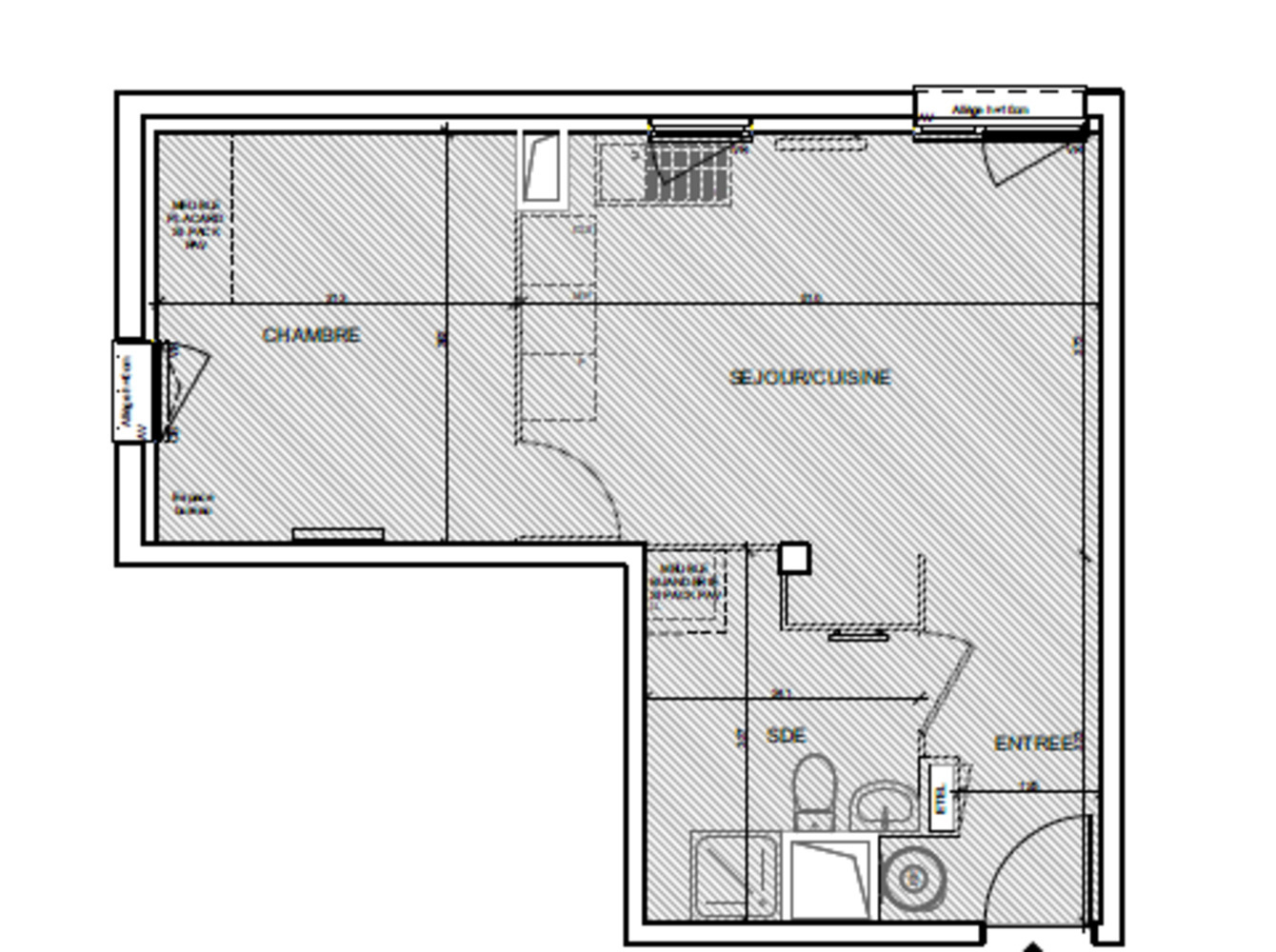
Informations

1 chambre
Étage : 2
1 salle d'eau
1 douche
1 WC
1 parking
Ascenseur
Local à vélo
Copropriété
Adapté PMR
Construit Neuf

Description

Hall Sunrise, appartement deux pièces au 3ème étage avec ascenseur.

Il comprend une entrée, un séjour avec cuisine aménagée et semi-équipée (plaque de cuisson, régrigérateur)
Une chambre et une salle d'eau.

Chauffage individuel au gaz (faible consommation d'énergie).
Un emplacement de stationnement extérieur

Loyer (charges de copropriété incluses) : 600 €

Pour visiter, déposer votre candidature en ligne sur Flatbay
Mis à jour le 27/11/2025

Équipements

Plaques de cuisson
Réfrigérateur
Fibre
Hotte Aspirante
Thermostat

Relevés techniques

Traversant
Non
Vitrage
Double

DPE : 85
A
B
C
D
E
F
G
GES : 14
A
B
C
D
E
F
G
Diagnostic réalisé le: 07/11/2024

Montant estimé des dépenses annuelles d'énergie pour un usage standard : entre 417 € et 565 € par an.

Production eau chaude
Individuel Gaz

Production chauffage
Individuel Gaz


Les informations sur les risques auxquels ce bien est exposé sont disponibles sur le site Géorisques : www.georisques.gouv.fr

État et prestations

État général
Excellent

Cuisine
Prestations
État
Salles de bain
Prestations
État
Sol(s)
Prestations
État
Fenêtres
Prestations
État