Appartement nu à louer 903,77 € cc

Rue Pierre Valette 92240 Malakoff

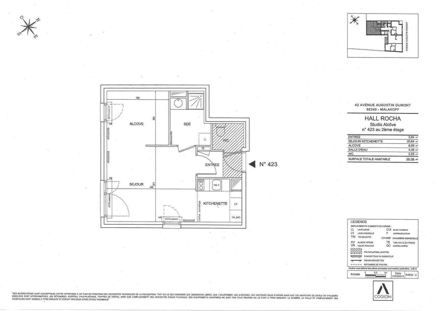
1 pièce 38.08m2

Référence : 75423

Conditions de location
903,77 € / mois cc

Charges
70,00 €

Dépôt de garantie
833,77 €

Honoraires agence
571,21 € TTC *


Disponibilité
Disponible le 22/10

Durée du bail
3 ans

Colocation
Non


* Dont 0,01 € TTC pour la réalisation de l'état des lieux
Description

Rue Pierre Valette à proximité de toutes commodités.
Un appartement de type T1 bis (423) d'une surface de 38,08m2 au 2me étage avec ascenseur.
Il est composé : d'une entrée, d'un séjour ouvert sur une kitchenette, d'une alcôve (d'une surface de 8,09m2), une salle d'eau et un WC.

Un emplacement parking.

Cadre loi Pinel.

Disponible à partir du 22 octobre 2025.

Mis à jour le 14/10/2025

Caractéristiques
  • Étage : 2
  • 1 salle d'eau
  • 1 WC
  • 1 parking
  • Ascenseur
  • Copropriété
  • Construit Après 1990
Inclus dans les charges
Eau froide
Relevés techniques
Diagnostic de performance énergétique : En cours

Production eau chaude
Individuel Gaz

Production chauffage
Individuel Gaz


Les informations sur les risques auxquels ce bien est exposé sont disponibles sur le site Géorisques: www.georisques.gouv.fr

Biens similaires