Appartement nu à louer 485,00 € cc

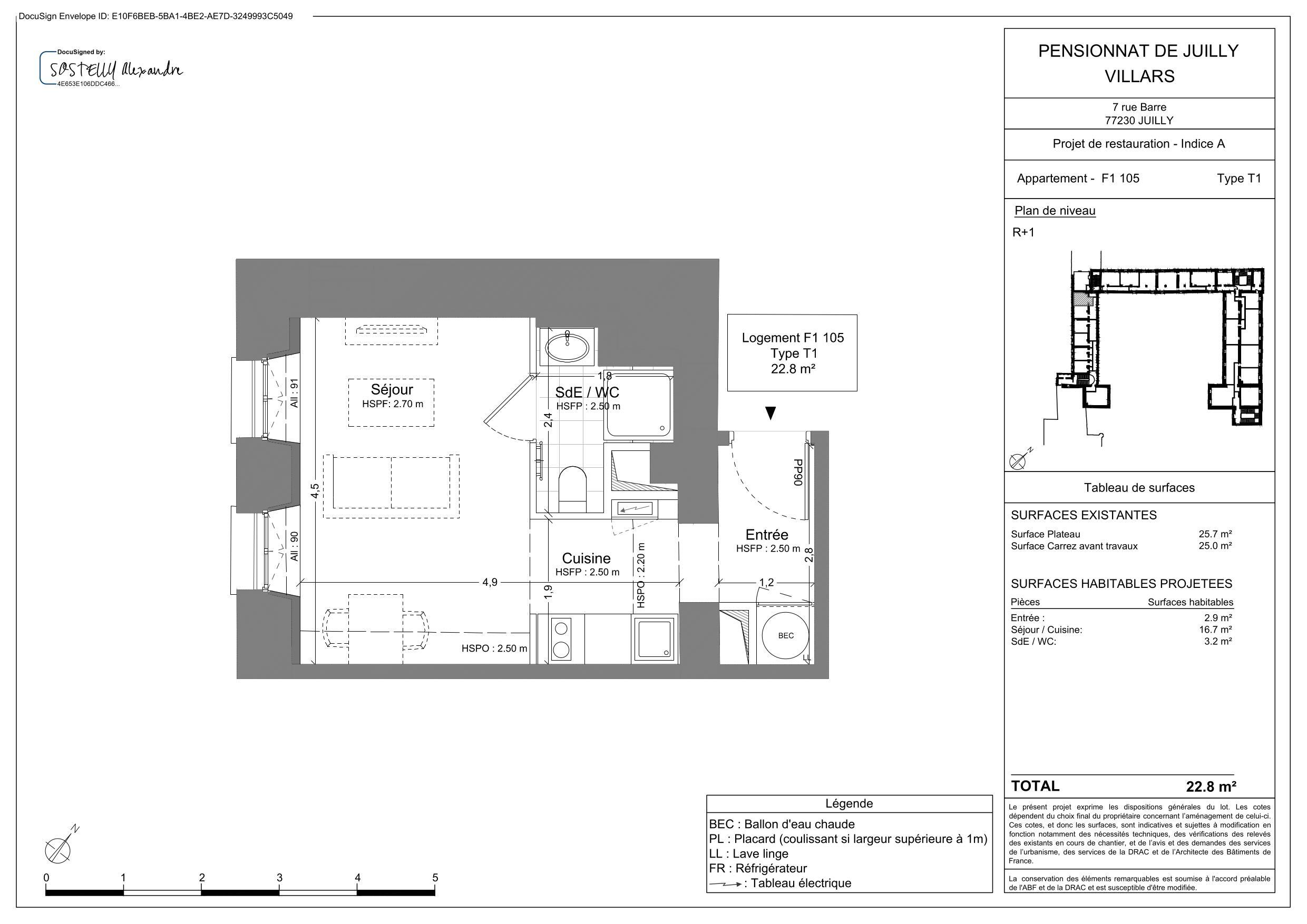
Rue Barre 77230 Juilly

1 pièce 22.8m2

Référence : 52871

Conditions de location
485,00 € / mois cc

Charges
40,00 €

Dépôt de garantie
445,00 €

Honoraires agence
250,77 € TTC


Disponibilité
Dès maintenant

Durée du bail
3 ans

Colocation
Non

Description

Avec son charme pittoresque et son ambiance sereine, Juilly est l'endroit idéal pour échapper à l'agitation urbaine.
Situé dans un cadre exceptionnel, entre richesses architecturales et parcs remarquables, le plus ancien pensionnat de France, fondé en 1638 sur Ordre de Louis XIII, vient tout juste d'être réhabilité en logements d'exceptions.
A seulement 5' en voiture de la Gare "Dammartin-Juilly-St Mard" (ligne K et TER) reliant Paris Gare du Nord en 30 minutes. A proximité des Aéroports Roissy-Charles de Gaulle et du Bourget.
Un appartement de type Studio (F1-105) d'une surface de 22,80m² situé au 1er étage.
Il est composé: d'une pièce principale ouverte sur une cuisine aménagée et équipée et d'une salle d'eau avec wc.

1 emplacement de parking extérieur sécurisé.


Merci de déposer votre dossier complet sur votre profil FLATBAY afin qu'il soit au préalable étudié. Si ce dernier répond aux critères : Revenus : 3 x le montant du loyer CC) vous recevrez une invitation de visite. Tout dossier incomplet sera refusé.
Les dossiers garants sont acceptés uniquement pour les statuts étudiants.

Mis à jour le 01/11/2025

Caractéristiques
  • Étage : 1
  • 1 salle d'eau
  • 1 WC
  • 1 parking
  • Copropriété
  • Construit Avant 1946
Équipements
Plaques de cuisson
Réfrigérateur
Hotte Aspirante
Inclus dans les charges
Entretien bâtiment
Eau froide
Relevés techniques

Traversant
Non

Vitrage
Double


Diagnostic de performance énergétique : En cours

Production eau chaude
Individuel Électrique

Production chauffage
Individuel Électrique


Les informations sur les risques auxquels ce bien est exposé sont disponibles sur le site Géorisques: www.georisques.gouv.fr

Bien similaire