Appartement nu à louer 835,26 € cc

Appartement Rue du Général Leclerc 94000 Créteil

2 pièces 42m2

Référence : 5257

Conditions de location
835,26 € / mois cc

Charges
130,00 €

Dépôt de garantie
705,26 €

Honoraires agence
546,00 € TTC


Disponibilité
Disponible le 16/11

Durée du bail
3 ans

Colocation
Non

Description

A quelques pas de l'île Ste Catherine, Av. du Général Leclerc à Créteil dans une résidence récente proche de toutes commodités.
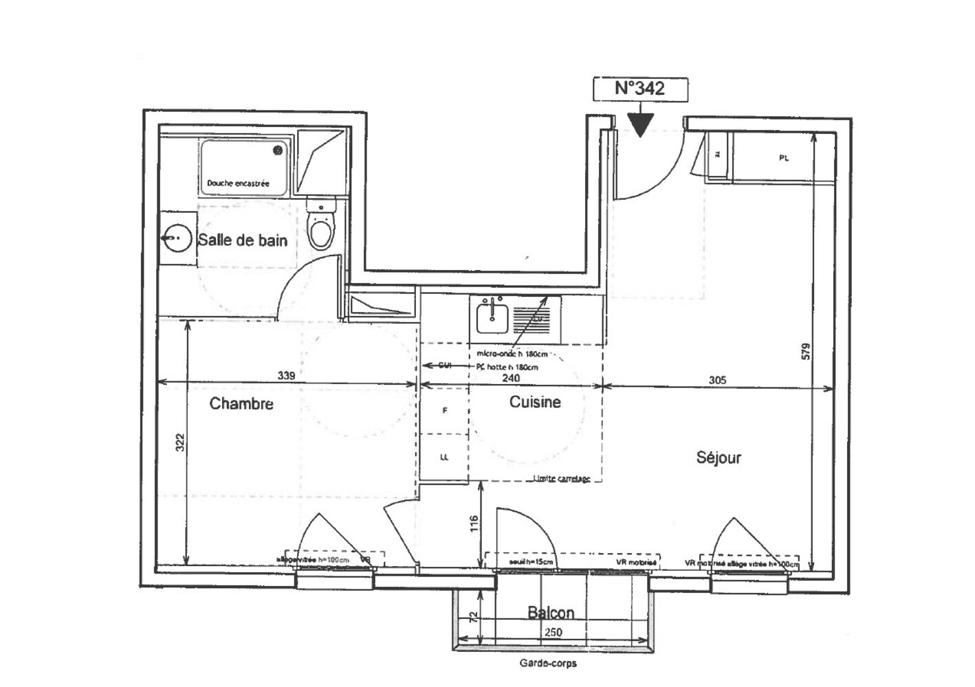
Un appartement de type 2 pièces (342) d'une surface de 42m² situé au 4ème étage avec ascenseur.
Il est composé d'une entrée, d'un séjour ouvert sur une cuisine , d'une chambre, d'une salle de bains avec wc et d'un balcon.

En sus un emplacement parking en s/sol

Cadre Loi Pinel.

Disponible à partir du 16 novembre 2025.

Mis à jour le 01/11/2025

Caractéristiques
  • 1 chambre
  • Étage : 4
  • 1 salle d'eau
  • 1 WC
  • 1 parking
  • Ascenseur
  • Balcon
  • Copropriété
  • Construit Après 1990
État et prestations

État général
Bon


Inclus dans les charges
Chauffage
Eau froide
Eau chaude
Relevés techniques

Traversant
Non

Vitrage
Double


DPE : 150
GES : 20

Diagnostic réalisé le: Non renseigné


Production eau chaude
Collectif

Production chauffage
Collectif


Les informations sur les risques auxquels ce bien est exposé sont disponibles sur le site Géorisques: www.georisques.gouv.fr

Biens similaires