1 672,37 € cc
21,32 € / m²

Appartement nu à louer

Appartement nu à louer

6 Miriam Makeba 93500 Pantin
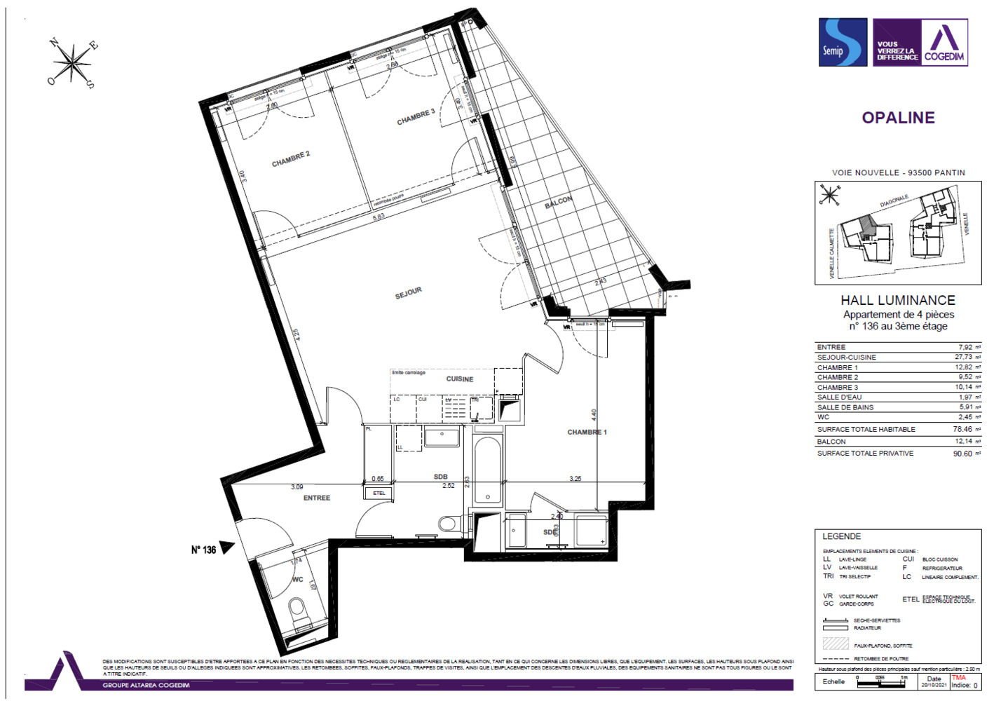
4 pièces 78.45 m2
Référence : 4330
1 672,37 € cc
21,32 € / m²

Conditions de location

1 672,37 € / mois cc

Charges
208,00 €
Dépôt de garantie
1 464,37 €
Honoraires agence
1 176,90 € TTC
Disponibilité
Dès maintenant
Durée du bail
3 ans
Colocation
Acceptée

Informations

3 chambres
Étage : 3
2 salles d'eau
1 WC
1 parking
Ascenseur
Balcon
Local à vélo
Copropriété
Construit Après 1990

Description

Rue Miriam Makeba, à 7 minutes à pied du métro 7 station et du tram T1 La Courneuve - 8 Mai 1945, proche de toutes commodités.
Un appartement type T4 (136) d'une surface de 78,46m2 situé au 3ème étage d'un immeuble récent.
Il est composé d'une entrée avec placard, d'un séjour ouvert sur une cuisine aménagée et équipée (four, plaque vitrocéramique, une hotte, un lave vaisselle), de trois chambres dont une suite parentale avec salle d'eau, d'une salle de bain avec WC et un WC séparé.

Un Balcon d'une surface de 12,14m2.

Un emplacement parking en sous-sol.

Disponible de suite.
Mis à jour le 30/04/2026

Transports en commun

Ligne 7
La courneuve-8-mai-1945
à 408 m
Ligne T1
La courneuve - 8 mai 1945
à 442 m

Équipements

Plaques de cuisson
Four
Lave-vaisselle
Hotte Aspirante

Inclus dans les charges

Chauffage
Eau froide
Eau chaude

Relevés techniques

Traversant
Non
Vitrage
Double

DPE : 90
A
B
C
D
E
F
G
GES : 10
A
B
C
D
E
F
G
Diagnostic réalisé le: Non renseigné

Production eau chaude
Collectif

Production chauffage
Collectif


Les informations sur les risques auxquels ce bien est exposé sont disponibles sur le site Géorisques : www.georisques.gouv.fr

État et prestations

État général
Bon