780,93 € cc

Appartement nu à louer

Appartement nu à louer

16 Rue Etienne Jules Marey 78390 Bois-d'Arcy
2 pièces 38.25 m2
Référence : 3749
780,93 € cc
20,42 € m²

Conditions de location

780,93 € / mois cc

Charges
120,00 €
Dépôt de garantie
660,93 €
Honoraires agence
497,25 € TTC
Disponibilité
Dès maintenant
Durée du bail
3 ans
Colocation
Non

Informations

1 chambre
Étage : 3
1 salle d'eau
1 WC
Ascenseur
Balcon
Copropriété
Construit Après 1990

Description

La plaine de Versailles, la forêt domaniale de Bois d'Arcy et la base de loisirs de St Quentin offrent de belles destinations de promenades en pleine nature.
Le marché couvert et les commerces de proximité entretiennent l'art du bien vivre.
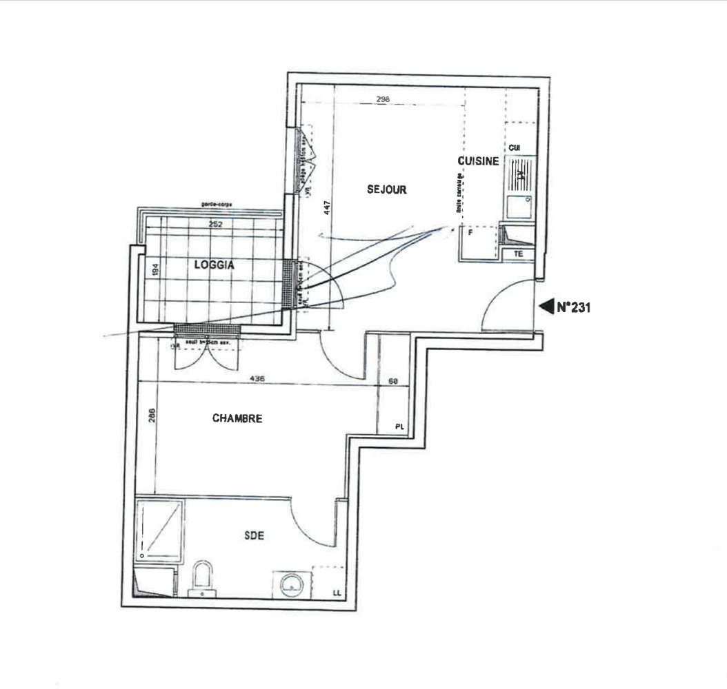
Dans une résidence moderne, au 3ème étage avec ascenseur, venez découvrir cet appartement de type 2 PIECES (231) de 38.25m2.
Il se compose d'un séjour avec une cuisine ouverte aménagée et équipée en plaques et hotte, une chambre avec une salle d'eau et wc.
Une loggia

Cadre loi Pinel

Disponible de suite.
Mis à jour le 29/12/2025

Inclus dans les charges

Chauffage
Eau chaude

Relevés techniques

DPE : 90
A
B
C
D
E
F
G
GES : 20
A
B
C
D
E
F
G
Diagnostic réalisé le: Non renseigné

Production eau chaude
Collectif

Production chauffage
Collectif


Les informations sur les risques auxquels ce bien est exposé sont disponibles sur le site Géorisques : www.georisques.gouv.fr