Appartement nu à louer 1 070,00 € cc

Appartement Rue Barre 77230 Juilly

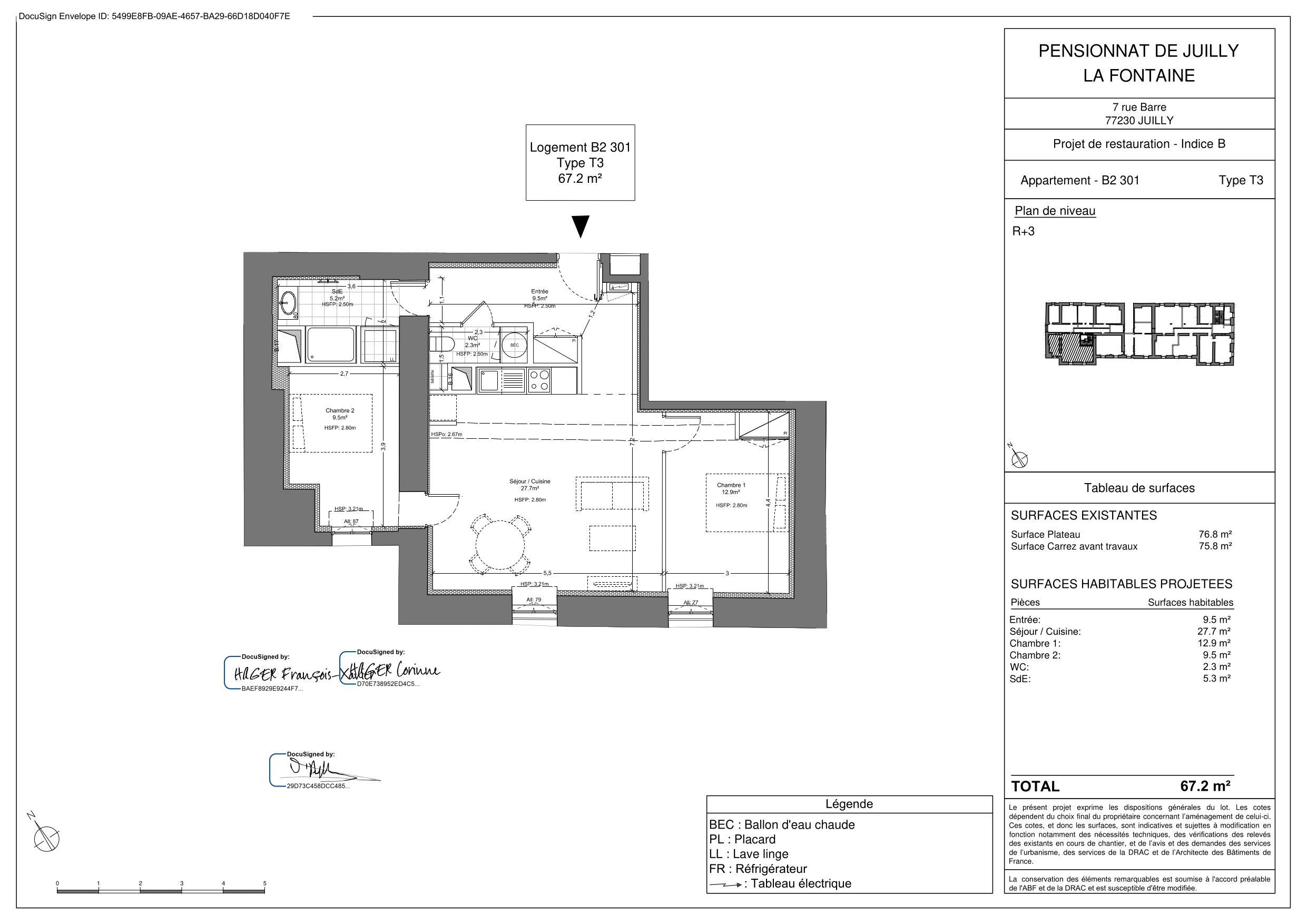
3 pièces 67.2m2

Référence : 22021

Conditions de location
1 070,00 € / mois cc

Charges
110,00 €

Dépôt de garantie
960,00 €

Honoraires agence
739,20 € TTC


Disponibilité
Dès maintenant

Durée du bail
3 ans

Colocation
Non

Description

Avec son charme pittoresque et son ambiance sereine, Juilly est l'endroit idéal pour échapper à l'agitation urbaine.
Situé dans un cadre exceptionnel, entre richesses architecturales et parcs remarquables, le plus ancien pensionnat de France, fondé en 1638 sur Ordre de Louis XIII, vient tout juste d'être réhabilité en logements d'exceptions.
A seulement 5' en voiture de la Gare "Dammartin-Juilly-St Mard" (ligne K et TER) reliant Paris Gare du Nord en 30 minutes. A proximité des Aéroports Roissy-Charles de Gaulle et du Bourget.
Dans le bâtiment "La Fontaine", au 3ème étage, un 3 pièces de 67.20m² comprenant, une entrée, une pièce principale avec une cuisine aménagée et équipée, deux chambres, une salle d'eau avec wc.
2 emplacements de parking extérieur sécurisé.


Merci de déposer votre dossier complet sur votre profil FLATBAY afin qu'il soit au préalable étudié. Si ce dernier répond aux critères : Revenus : 3 x le montant du loyer CC) vous recevrez une invitation de visite. Tout dossier incomplet sera refusé.
Les dossiers garants sont acceptés uniquement pour les statuts étudiants.

Mis à jour le 14/10/2025

Caractéristiques
  • 2 chambres
  • Étage : 3
  • 1 salle d'eau
  • 1 douche
  • 1 WC
  • 2 parkings
  • Copropriété
  • Construit Avant 1946
Inclus dans les charges
Entretien bâtiment
Eau froide
Relevés techniques
Diagnostic de performance énergétique : Vierge

Production eau chaude
Individuel Électrique

Production chauffage
Individuel Électrique


Les informations sur les risques auxquels ce bien est exposé sont disponibles sur le site Géorisques: www.georisques.gouv.fr

Biens similaires