745,00 € cc
19,28 € / m²

Appartement nu à louer

Appartement nu à louer

4 Rue Gambetta 95360 Montmagny
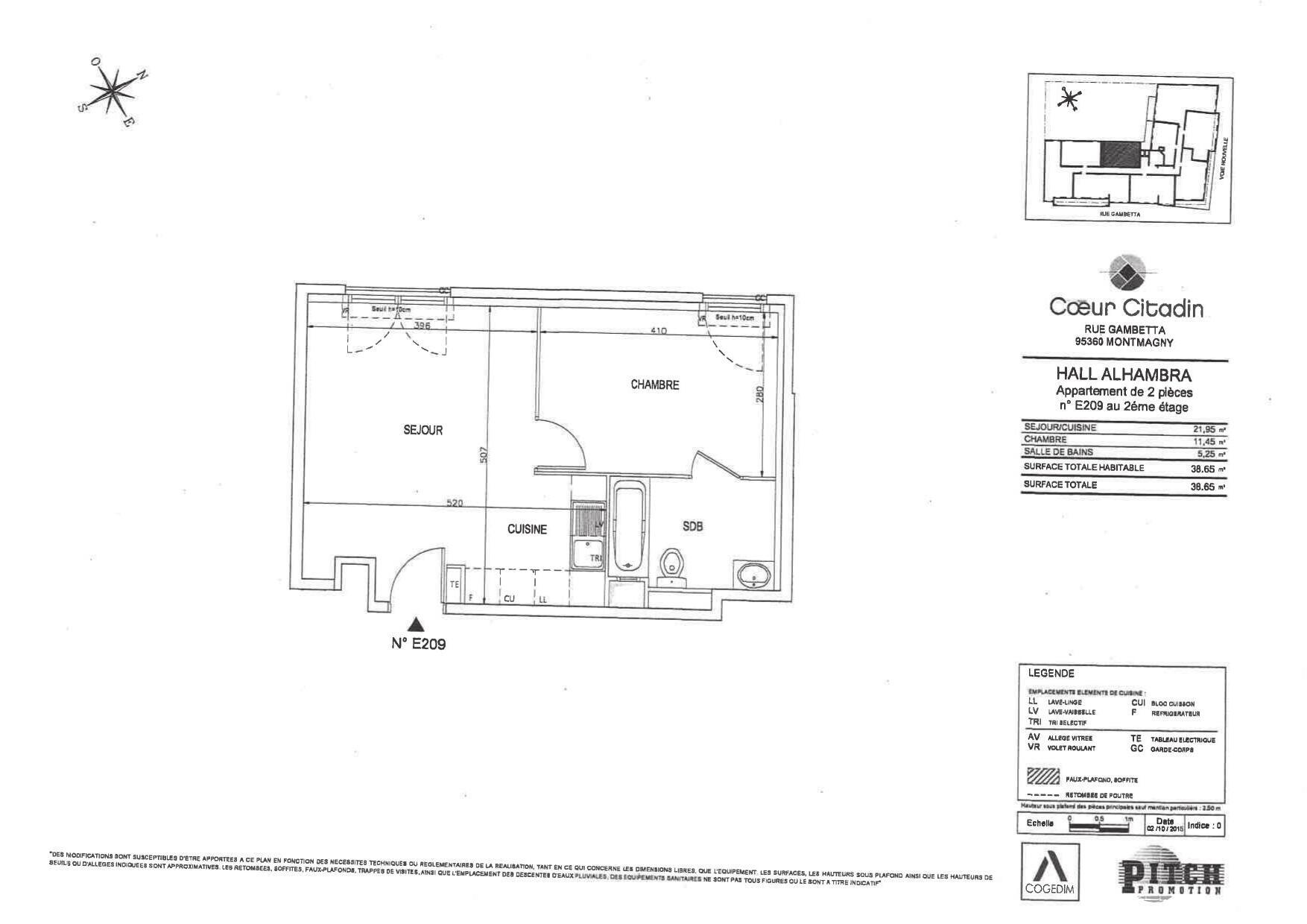
2 pièces 38.65 m2
Référence : 16911
745,00 € cc
19,28 € / m²

Conditions de location

745,00 € / mois cc

Charges
100,00 €
Dépôt de garantie
645,00 €
Honoraires agence
584,77 € TTC
Disponibilité
Disponible le 28/04
Durée du bail
3 ans
Colocation
Non

Informations

1 chambre
Étage : 2
1 salle d'eau
1 WC
Ascenseur
Copropriété
Construit Après 1990

Description

Rue Gambetta, dans une résidence récente , proche de toutes les commodité.
Un appartement de type T2 (E209) d'une surface de 38,65m2 au 2éme étage avec ascenseur, Il est composé d'un séjour ouvert sur une cuisine aménagée et équipée (plaques de cuisson, four et hotte), une chambre, une salle de bain avec wc.


Cadre loi Pinel.

Disponible à partir 28 avril 2026.
Mis à jour le 17/04/2026

Transports en commun

Ligne H
Deuil - montmagny
à 625 m

Équipements

Plaques de cuisson
Four
Hotte Aspirante

Inclus dans les charges

Chauffage
Eau froide
Eau chaude

Relevés techniques

Traversant
Non
Vitrage
Double

DPE : 145
A
B
C
D
E
F
G
GES : 29
A
B
C
D
E
F
G
Diagnostic réalisé le: Non renseigné

Production eau chaude
Collectif

Production chauffage
Collectif


Les informations sur les risques auxquels ce bien est exposé sont disponibles sur le site Géorisques : www.georisques.gouv.fr

État et prestations

État général
Bon